Staro mjesto za nalaženje
Unaprijeđenje internetske stranice sufinancirala je Europska unija iz Kohezijskog fonda. Detalji projekta
Staro mjesto za nalaženje
Unaprijeđenje internetske stranice sufinancirala je Europska unija iz Kohezijskog fonda. Detalji projekta
Aktivan od: 8.12.2025.
Oglas pregledan: 31 puta
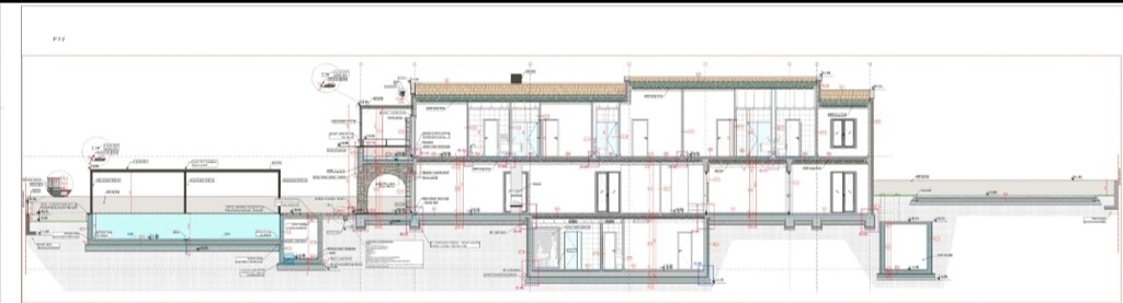
ZEMLJIŠTE S PRAVOMOĆNOM DOZVOLOM ZA GRADNJU LUKSUZNE VILE
360.000 €
Hrvatska, Istarska, Medulin, Premantura
Otvori u kartama
Moguća dostava
Osnovni podaci
Površina
840 m²
Šifra oglasa: 4783027
Aktivan od: 8.12.2025.
Oglas pregledan: 31 puta
Hrvatska, Istarska, Medulin, Premantura
Otvori u kartama
Moguća dostava


ZEMLJIŠTE S PRAVOMOĆNOM DOZVOLOM ZA GRADNJU LUKSUZNE VILE
U ponudi imamo zemljište s pogledom na more ispred kojeg višIstarska, Premantura
360.000 €


ISTRA, TINJAN građevinsko zemljiše s pravomoćnom dozvolom!
Građevinsko
Istarska, Jakovici
75.000 €


Građevinsko zemljište s dozvolom na prodaju, Ližnjan, Istra
Na prodaju je građevinska parcela u Ližnjanu površine 769 m2Istarska, Ližnjan
138.420 €


Zemljište za kuću za odmor
U naselju Perini kraj Svetog Lovreča prodaje se zemljište saIstarska, Perini
175.000 €


Građevinsko zemljište s projektom i prijavljenim gradilištem
U prodaji je građevinsko zemljište na lokaciji Valtura površIstarska, Valtura
115.000 €

Zemljište na vrlo atraktivnoj lokaciji, Premantura, Istra
U ponudi imamo ovo građevinsko zemljište na vrlo atraktivnojIstarska, Premantura
506.500 €


ISTRA, LUPOGLAV građevinsko zemljište s građevinskom dozvolo
Građevinsko
Istarska, Lupoglav
64.000 €


ISTRA, LUPOGLAV prostrano građevinsko zemljište sa građevins
Građevinsko
Istarska, Lupoglav
123.000 €


Građevinsko zemljište u blizini Višnjana, Istra
Na prodaju je ovo građevinsko zemljište udaljeno cca 5 km odIstarska, Višnjan
80.000 €


Građevinsko zemljište blizu Umaga!
Na mirnoj lokaciji u okolici Umaga, 6500m od mora, prodajemoIstarska, Materada
83.000 €


ISTRA, LUPOGLAV građevinsko zemljište s otvorenim pogledom n
Građevinsko
Istarska, Lupoglav
58.800 €


Prekrasno građevinsko zemljište u selu kraj Labina
Građevinsko
Hrvatska
131.500 €


Opatija, Kolavići, građevinsko zemljište sa prekrasnim pogle
Građevinsko
Primorsko-goranska, Opatija
695.000 €


Građevinsko zemljište za malu stambenu zgradu
U centru Medulina prodaje se građevinsko zemljište sa građevIstarska, Medulin
420.000 €


ISTRA, KAVRAN građevinsko zemljište s pogledom na more
Građevinsko
Istarska, Kavran
176.000 €

GRAĐEVINSKO ZEMLJIŠTE MEDULIN
U ponudi imamo građevinsko zemljište 600 m2,udaljenost od moIstarska, Medulin
208.000 €