Staro mjesto za nalaženje
Unaprijeđenje internetske stranice sufinancirala je Europska unija iz Kohezijskog fonda. Detalji projekta
Staro mjesto za nalaženje
Unaprijeđenje internetske stranice sufinancirala je Europska unija iz Kohezijskog fonda. Detalji projekta
Aktivan od: 11.4.2025.
Oglas pregledan: 144 puta
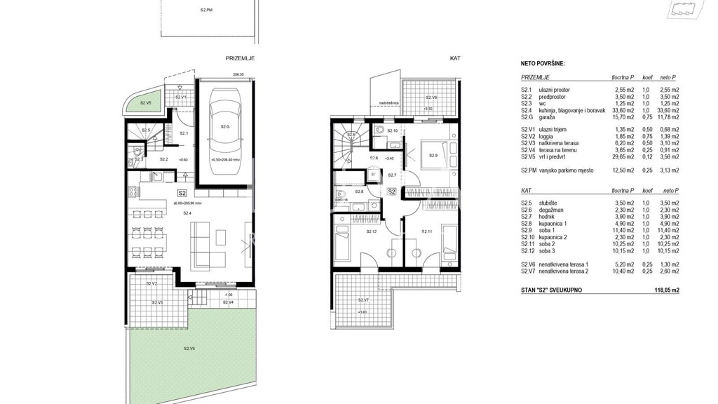
Zagreb, Perjavica, luksuzna novogradnja na prodaju, stan S2
401.370 €
Hrvatska, Grad Zagreb, Stenjevec, Stenjevec
Otvori u kartama
Moguća dostava
Osnovni podaci
Vrsta stana
stan u zgradi
Broj soba
4-sobni
Površina
118 m²
Tip gradnje
novogradnja
Detalji o nekretnini
Broj etaža
2
Kat
1. kat
Garaža
samostojeća garaža
Šifra oglasa: 6336316
Aktivan od: 11.4.2025.
Oglas pregledan: 144 puta
Hrvatska, Grad Zagreb, Stenjevec, Stenjevec
Otvori u kartama
Moguća dostava