Staro mjesto za nalaženje
Unaprijeđenje internetske stranice sufinancirala je Europska unija iz Kohezijskog fonda. Detalji projekta
Staro mjesto za nalaženje
Unaprijeđenje internetske stranice sufinancirala je Europska unija iz Kohezijskog fonda. Detalji projekta
Aktivan od: 11.2.2025.
Oglas pregledan: 120 puta
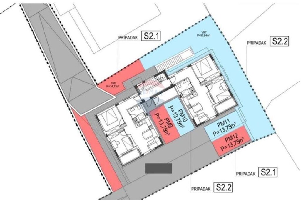
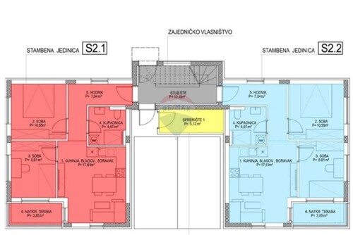
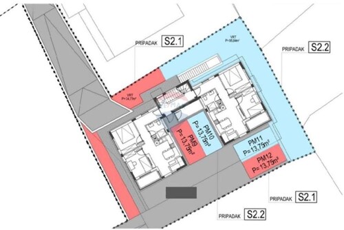
ZADAR, PLOVANIJA - NOVOGRADNJA U PRIZEMLJU S VRTOM
251.930 €
Hrvatska, Zadarska, Zadar, Plovanija
Otvori u kartama
Moguća dostava
Osnovni podaci
Vrsta stana
stan u zgradi
Broj soba
3-sobni
Površina
72 m²
Detalji o nekretnini
Broj etaža
Da
Godina izgradnje
2024
Kat
suteren
Energetski certifikat
A
Broj parkirališnih mjesta
Da
Garaža
samostojeća garaža
Vlasnički list
2134
Šifra oglasa: 6234124
Aktivan od: 11.2.2025.
Oglas pregledan: 120 puta
Hrvatska, Zadarska, Zadar, Plovanija
Otvori u kartama
Moguća dostava