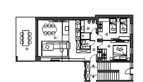
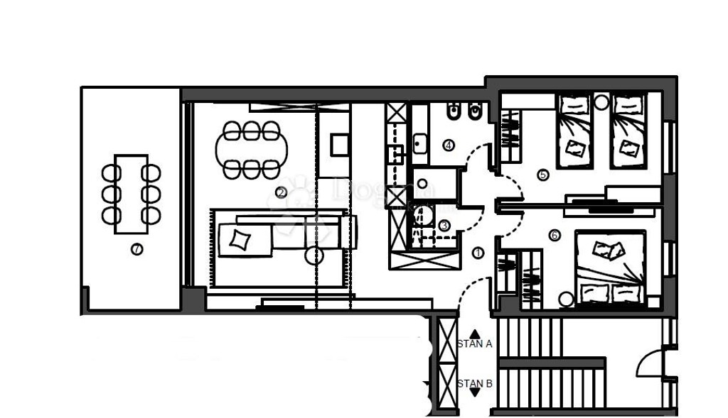
Istra, Umag, EKSKLUZIVNO! (STAN C) Novogradnja u okolici Umaga, 10 minuta od mora. Stan se nalazi u višestambenoj zgradi sa 6 stanova, izgrađenoj prema visokim standardima. Pročelje je okrenuto prema zapadu s pogledom na zalazak sunca. Izvođač i investitor su pouzdani, što pruža sigurnost budućim vlasnicima. Krov je ravan, s …opcijom postavljanja solarnih panela. Stan se nalazi na prvom katu te ima terasu od 17,50 m2 (8,75 m2 NETO) koja čini ovaj stan privlačnim izborom za ljude koji žele uživati u blagodatima vanjskog prostora, praktičnosti i dodatnoj slobodi kretanja. Sastoji se od ulaznog prostora, 2 spavaće sobe, kupaonice, spremišta i prostranog dnevnog boravka s kuhinjom. Ispred ulaza je ugradbeni ormar za dodatno pohranjivanje. Stan nudi podno grijanje na struju, klimatizaciju u svim prostorijama, aluminijsku stolariju s troslojnim staklom, te jedno natkriveno parkirno mjesto i spremište u cijeni. Dodatni parkirni prostor može se dokupiti, a na raspolaganju su i parkirna mjesta s električnim napajanjem. U podrumu zgrade nalaze se 6 spremišta, pri čemu je jedno spremište uključeno u cijenu stana. * Grijanje podno * Klimatizirane sve prostorije * Stolarija aluminijska, troslojno staklo *PARKET u svim prostorijama osim kupatila * 1 parkirno mjesto u cijeni * mogućnost dokupnje natkrivenog ili nenatkrivenog parkinga * 1 spremište u cijeni * 2 parkirna mjesta s električnim napajanjem (na korištenje) * Udaljenost od plaže 1000m * Gradska kanalizacija, internet * Videonadzor Planirani dovršetak projekta očekuje se do kraja 2024. godine. Izražena cijena nekretnine već uključuje PDV, pa novi vlasnik ne plaća porez na promet nekretnina (3%). Ako ste zainteresirani, kontaktirajte nas i rezervirajte svoj termin za razgledavanje ove prekrasne nekretnine. SLIKE S NAMJEŠTAJEM IZLOŽBENOG SU KARAKTERA, ipak, postoji mogućnost da vam se uz nadoplatu omogući upravo dizajn s rendera. . Obratite se s povjerenjem, Leonida Meglaj licencirani agent +385 95 905 98 98 ID KOD AGENCIJE: IS1513864 Leonida Meglaj Agent s licencom Mob: 095/905-9898 Tel: 052/639-390 E-mail: leonida.meglaj@dogma-nekretnine.com www.dogma-nekretnine.com