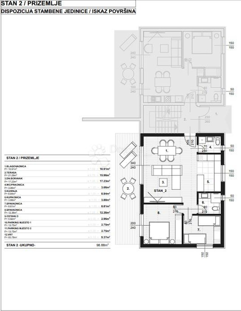
Ovaj moderno dizajnirani stan smješten u okolici Umaga pruža idealnu kombinaciju udobnosti, funkcionalnosti i kvalitete. S površinom od 98,88 m², stan nudi prostrane i svijetle unutarnje prostore, uključujući dnevni boravak s kuhinjom i blagovaonicom otvorenog tipa. Stan se sastoji od dvije udobne spavaće sobe, moderne kupaonice, WC-a za goste te …praktičnog hodnika. Iz dnevnog boravka izlazi se na veliku terasu površine 21,29 m², koja vodi u urednu okućnicu veličine 94 m², savršenu za opuštanje i vanjske aktivnosti. Dodatne prednosti ovog stana uključuju ostavu u podrumu zgrade i dva parkirna mjesta, što dodatno povećava njegovu funkcionalnost. Stan se gradi od visokokvalitetnih materijala, uključujući Phoroterm ciglu debljine 25 cm i fasadu s termo izolacijom debljine 10 cm, čime je osigurana energetska učinkovitost i dugovječnost objekta. Vanjska stolarija bit će visokokvalitetna antracit boje s električnim roletama, dok će svaka prostorija unutar stana biti opremljena multisplit sustavom hlađenja, omogućujući zasebnu kontrolu temperature u svakoj prostoriji. Za dodatnu udobnost, grijanje stana bit će osigurano električnim podnim grijanjem. Ovaj stan pruža vrhunski životni prostor u mirnoj okolici, s planiranim završetkom radova u jesen 2025. godine. Savršeno je mjesto za obitelj ili sve koji traže udoban i moderan životni prostor u blizini Umaga. ID KOD AGENCIJE: IS1516452 Karlo Šestan Asistent u posredovanju Mob: 091/361-1922 Tel: 052 770 811 E-mail: karlo.sestan@dogma-nekretnine.com www.dogma-istra.com