Staro mjesto za nalaženje
Unaprijeđenje internetske stranice sufinancirala je Europska unija iz Kohezijskog fonda. Detalji projekta
Staro mjesto za nalaženje
Unaprijeđenje internetske stranice sufinancirala je Europska unija iz Kohezijskog fonda. Detalji projekta
Aktivan od: 28.2.2025.
Oglas pregledan: 446 puta
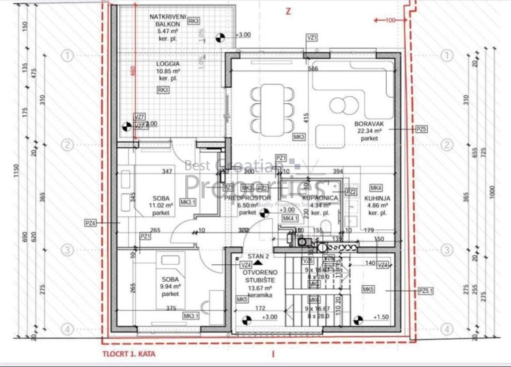
TREŠNJEVKA (Pregradska) PREDIVAN DVOETAŽNI STAN 99m2 + VPM + SPREMIŠTE
372.000 €
Moguća dostava
Osnovni podaci
Broj soba
5-sobni i više
Površina
95 m²
Tip gradnje
novogradnja
Stambena površina
95 m²
Detalji o nekretnini
Broj kupaonica
2
Broj sanitarnih čvorova
Da
Godina izgradnje
2025
Energetski certifikat
A+
A
Stanje nekretnine
u izgradnji
Garaža
parkirno mjesto
Građevinska dozvola
2131
Uporabna dozvola
2132
Dodatno
Dodatno
ostalo
ostalo
ostalo
Šifra oglasa: 6246549
Aktivan od: 28.2.2025.
Oglas pregledan: 446 puta
Moguća dostava