Staro mjesto za nalaženje
Unaprijeđenje internetske stranice sufinancirala je Europska unija iz Kohezijskog fonda. Detalji projekta
Staro mjesto za nalaženje
Unaprijeđenje internetske stranice sufinancirala je Europska unija iz Kohezijskog fonda. Detalji projekta
Aktivan od: 11.3.2025.
Oglas pregledan: 132 puta
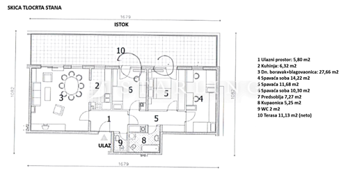
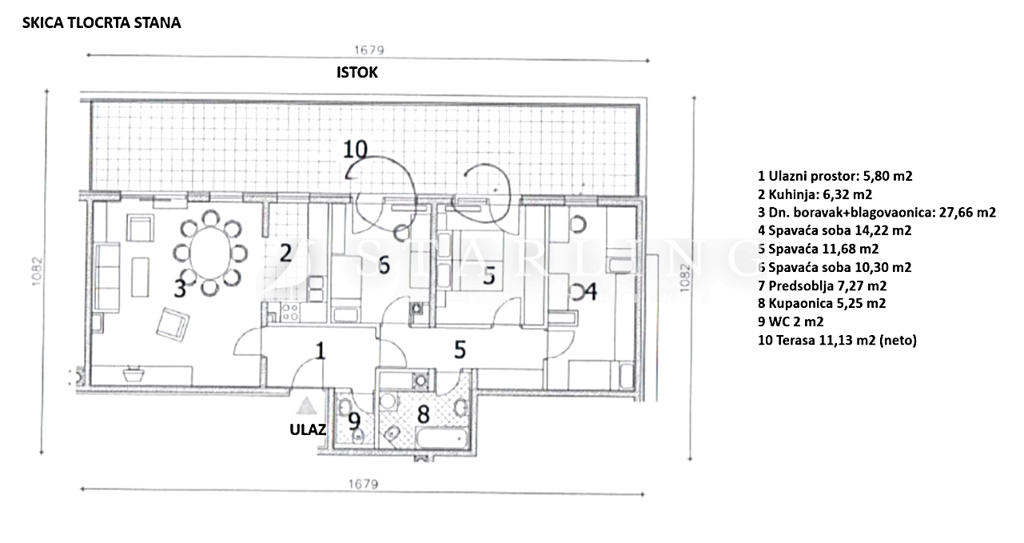
STAN+2 GPM, PRODAJA, SAMOBOR, 118 m2, 4-soban
325.000 €
Hrvatska
Otvori u kartama
Moguća dostava
Osnovni podaci
Vrsta stana
stan u zgradi
Broj soba
4-sobni
Površina
118 m²
Grijanje
plin centralno
plinske peći
Tip gradnje
novogradnja
Detalji o nekretnini
Broj etaža
Da
Kat
3. kat
Energetski certifikat
B
Broj parkirališnih mjesta
2
Garaža
samostojeća garaža
Uporabna dozvola
2132
Dodatno
Dodatno
telefon
lift
Šifra oglasa: 6252526
Aktivan od: 11.3.2025.
Oglas pregledan: 132 puta
Hrvatska
Otvori u kartama
Moguća dostava