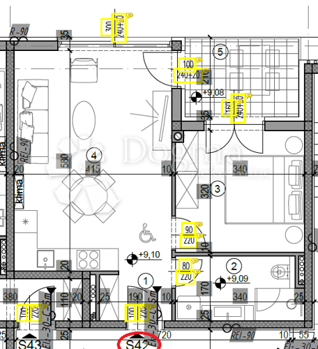
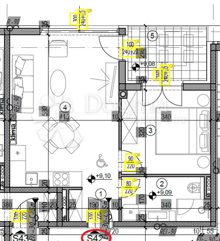
Najveće kulturno i gospodarsko središte u Istri, Pula nudi sve sadržaje većeg grada, mnoštvo povijesnih znamenitosti, netaknutih plaža i prirodnih ljepota, među kojima se posebno ističe Nacionalni park Brijuni. Simbol Pule njezina je Arena, odnosno šesti po veličini rimski amfiteatar na svijetu, koja tijekom godine ugošćuje razne festivale, koncerte i …druga događanja. Zahvaljujući njezinom odličnom položaju na samom jugu Istre, u blizini ostalih zanimljivih istarskih mjesta i nedaleko od Slovenije i Italije, atraktivna je destinacija i za život i za odmor. Osim vrhunskom cestovnom povezanošću, Pula se može pohvaliti i vlastitom zračnom lukom, jedinom u Istri, što je čini iznimno dostupnom. Bogato povijesno nasljeđe, blaga mediteranska klima, vrhunska gastronomska ponuda i raznovrstan kalendar događanja tijekom cijele godine privlače posjetitelje iz svih zemalja svijeta, stoga je kupovina nekretnine u Puli uvijek višestruko isplativa investicija. A na jednoj od najatraktivnijih lokacija smjestila se ova stambeno-poslovna novogradnja sastoji se od 87 stanova s 2 zasebna ulaza, 2 stubišta i 2 dizala kako bi se rasteretio ulazni prostor. U prizemlju se nalaze i poslovni prostor te vlastita parkirna mjesta, a razvija se na ukupno 7 etaža. Navedeni stan sastoji se od: 1. Hodnik + garderoba - 6,05 m2 2. Kupaonica - 4,20 m2 3. Spavaća soba - 12,48 m2 4. Spavaća soba 9,12 m2 4. Kuhinja + db. + blag. - 18,47 m2 5. Loggia - 6,10 m2 Ukupno netto: 56,42 m2 Lokacija: - U blizini trgovačkog centra Pula City Mall - Samo 2 km od centra Pule - 1 km od Opće bolnice Pula Uz stan otvorena je mogućnost kupnje uz nadoplatu skladišni prostor te garažno parkirno mjesto. Planirani završetak građevinskih radova početak 2026. godine. Za sve dodatne informacije stojimo na raspolaganju na: LORENA KOGEJ Agent s licencom Mob 091/738-7200 lorena.kogej@dogma-nekretnine.com SANDRA MILETIĆ Agent s licencom Mob 091/988-5843 sandra.miletic@dogma-nekretnine.com ID KOD AGENCIJE: IS1512352 Lorena Kogej Agent s licencom Mob: 091/738-7200 Tel: 052/639-276 E-mail: lorena.kogej@dogma-nekretnine.com www.dogma-nekretnine.com Sandra Miletić Agent s licencom Mob: 091/988-5843 Tel: 052/639-276 E-mail: sandra.miletic@dogma-nekretnine.com www.dogma-nekretnine.com