Staro mjesto za nalaženje
Unaprijeđenje internetske stranice sufinancirala je Europska unija iz Kohezijskog fonda. Detalji projekta
Staro mjesto za nalaženje
Unaprijeđenje internetske stranice sufinancirala je Europska unija iz Kohezijskog fonda. Detalji projekta
Aktivan od: 17.2.2025.
Oglas pregledan: 412 puta
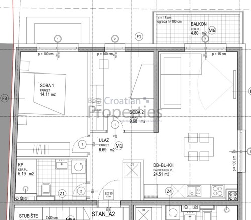
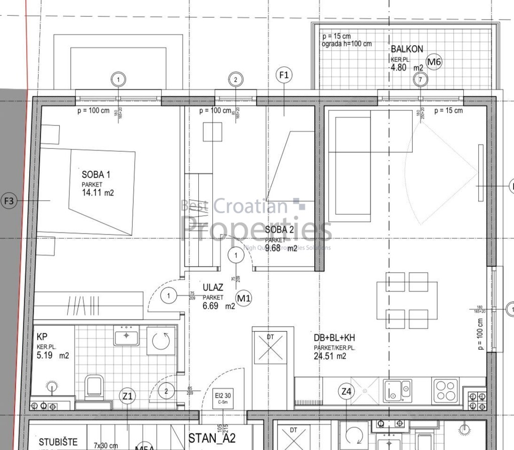
RUDEŠ (Anina): PREKRASAN 3.SOB STAN 62.30m2 + VPM (NOVOGRADNJA)
255.000 €
Moguća dostava
Osnovni podaci
Broj soba
3-sobni
Površina
66 m²
Tip gradnje
novogradnja
Stambena površina
66 m²
Detalji o nekretnini
Broj kupaonica
Da
Godina izgradnje
2025
Energetski certifikat
A+
A
Stanje nekretnine
u izgradnji
Građevinska dozvola
2131
Vlasnički list
2134
Dodatno
Dodatno
ostalo
ostalo
ostalo
Šifra oglasa: 6237392
Aktivan od: 17.2.2025.
Oglas pregledan: 412 puta
Moguća dostava