Staro mjesto za nalaženje
Unaprijeđenje internetske stranice sufinancirala je Europska unija iz Kohezijskog fonda. Detalji projekta
Staro mjesto za nalaženje
Unaprijeđenje internetske stranice sufinancirala je Europska unija iz Kohezijskog fonda. Detalji projekta
Aktivan od: 11.10.2024.
Oglas pregledan: 333 puta
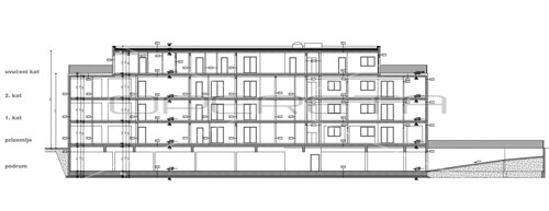
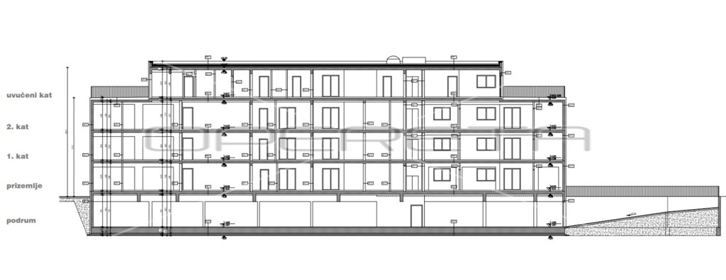
Prodaja, Stan, Zaprešić-Centar, Nova ulica, 4s, 100m2
239.990 €
Hrvatska, Zagrebačka, Zaprešić, Rakitovac
Otvori u kartama
Moguća dostava
Osnovni podaci
Broj soba
4-sobni
Površina
100 m²
Grijanje
plinske peći
Tip gradnje
novogradnja
Detalji o nekretnini
Garaža
samostojeća garaža
Dodatno
Dodatno
lift
Šifra oglasa: 6137625
Aktivan od: 11.10.2024.
Oglas pregledan: 333 puta
Hrvatska, Zagrebačka, Zaprešić, Rakitovac
Otvori u kartama
Moguća dostava