Staro mjesto za nalaženje
Unaprijeđenje internetske stranice sufinancirala je Europska unija iz Kohezijskog fonda. Detalji projekta
Staro mjesto za nalaženje
Unaprijeđenje internetske stranice sufinancirala je Europska unija iz Kohezijskog fonda. Detalji projekta
Aktivan od: 17.4.2025.
Oglas pregledan: 96 puta
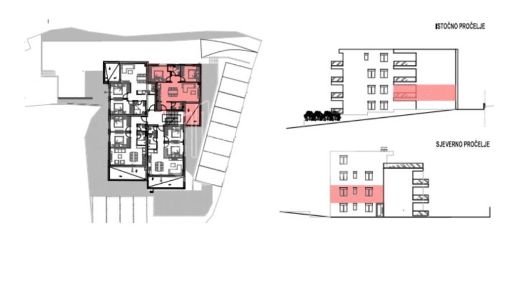
Prodaja, Primošten, stan prvi kat 70m2
275.000 €
Moguća dostava
Osnovni podaci
Broj soba
3-sobni
Površina
70 m²
Tip gradnje
novogradnja
Stambena površina
70 m²
Detalji o nekretnini
Broj kupaonica
Da
Broj sanitarnih čvorova
2
Godina izgradnje
2025
Energetski certifikat
A
Šifra oglasa: 6339857
Aktivan od: 17.4.2025.
Oglas pregledan: 96 puta
Moguća dostava