Staro mjesto za nalaženje
Unaprijeđenje internetske stranice sufinancirala je Europska unija iz Kohezijskog fonda. Detalji projekta
Staro mjesto za nalaženje
Unaprijeđenje internetske stranice sufinancirala je Europska unija iz Kohezijskog fonda. Detalji projekta
Aktivan od: 30.4.2025.
Oglas pregledan: 84 puta
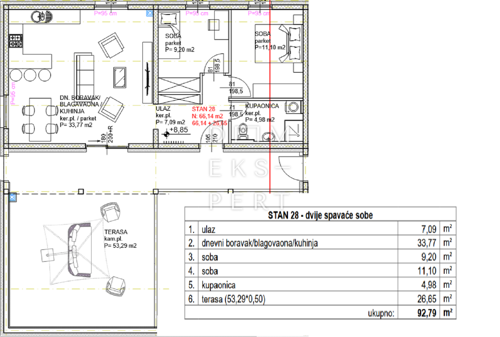
Popovec, Sesvete, Popovec, trosoban stan na trećem katu s te
227.335 €
Moguća dostava
Osnovni podaci
Vrsta stana
stan u zgradi
Broj soba
3-sobni
Površina
93 m²
Grijanje
plin centralno
Detalji o nekretnini
Broj etaža
Da
Kat
3. kat
Broj parkirališnih mjesta
Da
Građevinska dozvola
2131
Vlasnički list
2134
Dodatno
Dodatno
lift
Šifra oglasa: 6357514
Aktivan od: 30.4.2025.
Oglas pregledan: 84 puta
Moguća dostava