Aktivan od: 30.4.2025.
Oglas pregledan: 108 puta
Popovec, Sesvete, Popovec, trosoban stan na drugom katu s ba
174.709 €
Moguća dostava
Opis proizvoda
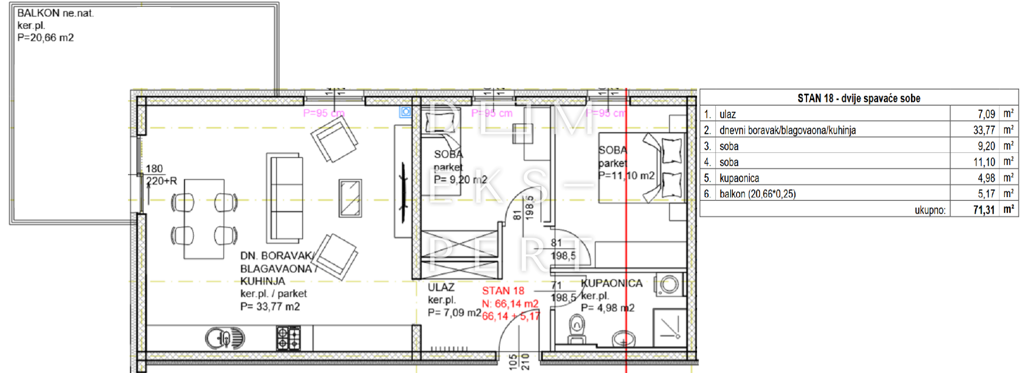
Prodaje se trosoban stan na drugom katu zgrade u naselju Popovec, Sesvete.
POVRŠINA STANA:
-66.14 m² (podna, unutarnja površina)
- ukupna površina stana iznosi 71.31 m² s balkonom površine 20.66 m² obračunato prema pripadajućim koeficijentima (5.17 m²).
STAN SE SASTOJI OD:
- ulaznog hodnika (7.09 m²)
- kupaonice (4.98 m²)
-
Osnovni podaci
Vrsta stana
stan u zgradi
Broj soba
3-sobni
Površina
71 m²
Grijanje
plin centralno
Detalji o nekretnini
Broj etaža
Da
Kat
2. kat
Broj parkirališnih mjesta
Da
Građevinska dozvola
2131
Vlasnički list
2134
Dodatno
Dodatno
lift
Šifra oglasa: 6357524
Aktivan od: 30.4.2025.
Oglas pregledan: 108 puta
Moguća dostava
Staro mjesto za nalaženje
Unaprijeđenje internetske stranice sufinancirala je Europska unija iz Kohezijskog fonda. Detalji projekta









