Aktivan od: 30.4.2025.
Oglas pregledan: 112 puta
Popovec, Sesvete, Popovec, dvosoban stan na trećem katu, 33m
87.642 €
Moguća dostava
Opis proizvoda
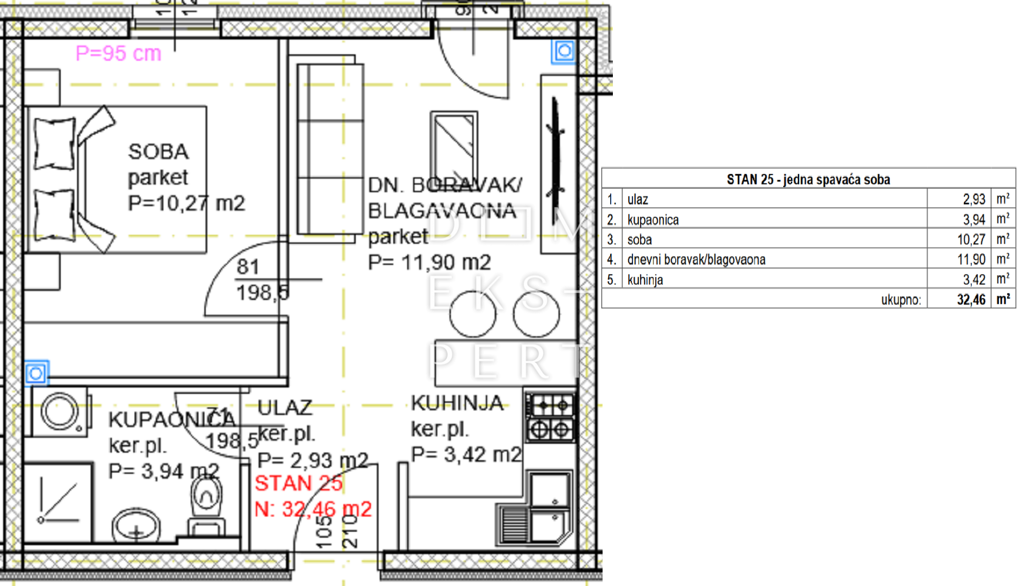
Prodaje se dvosoban stan na trećem katu zgrade u naselju Popovec, Sesvete.
POVRŠINA STANA:
- 32.46 m²
STAN SE SASTOJI OD:
- ulaznog hodnika (2.93 m²)
- kupaonice (3.94 m²)
- dnevnog boravka s blagovaonicom (11.9 m²)
- kuhinje (3.42 m²)
- jedne spavaće sobe (10.27 m²)
Orijentiran je na
Osnovni podaci
Vrsta stana
stan u zgradi
Broj soba
2-sobni
Površina
32 m²
Grijanje
plin centralno
Detalji o nekretnini
Broj etaža
Da
Kat
3. kat
Broj parkirališnih mjesta
Da
Građevinska dozvola
2131
Vlasnički list
2134
Dodatno
Dodatno
lift
Šifra oglasa: 6357517
Aktivan od: 30.4.2025.
Oglas pregledan: 112 puta
Moguća dostava
Staro mjesto za nalaženje
Unaprijeđenje internetske stranice sufinancirala je Europska unija iz Kohezijskog fonda. Detalji projekta









