Staro mjesto za nalaženje
Unaprijeđenje internetske stranice sufinancirala je Europska unija iz Kohezijskog fonda. Detalji projekta
Staro mjesto za nalaženje
Unaprijeđenje internetske stranice sufinancirala je Europska unija iz Kohezijskog fonda. Detalji projekta
Aktivan od: 30.4.2025.
Oglas pregledan: 108 puta
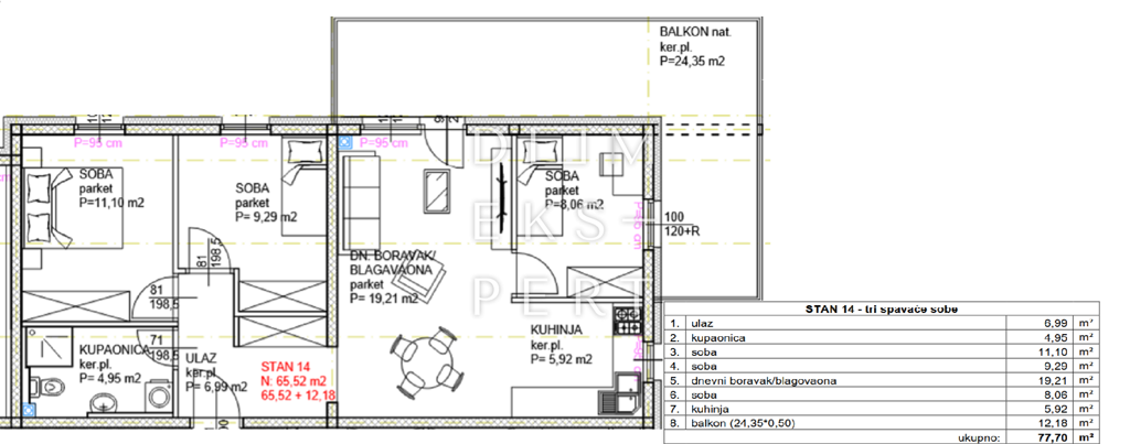
Popovec, Sesvete, Popovec, četverosoban stan na prvom katu s
190.365 €
Moguća dostava
Osnovni podaci
Vrsta stana
stan u zgradi
Broj soba
4-sobni
Površina
78 m²
Grijanje
plin centralno
Detalji o nekretnini
Broj etaža
Da
Kat
1. kat
Broj parkirališnih mjesta
Da
Građevinska dozvola
2131
Vlasnički list
2134
Dodatno
Dodatno
lift
Šifra oglasa: 6357528
Aktivan od: 30.4.2025.
Oglas pregledan: 108 puta
Moguća dostava