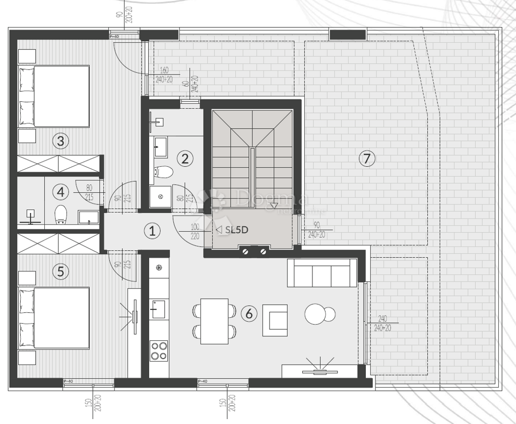
IZNIMAN PROJEKT VRHUNSKE NOVOGRADNJE NA ATRAKTIVNOJ LOKACIJI - ŠTINJAN!! Jednosobni i dvosobni stanovi iznimne kvalitete te odličnog rasporeda odlični kao odabir nekretnine za život ili investiciju. Lokacija Štinjan - Pula Štinjan je prigradsko naselje u sastavu grada Pule te naselje spada pod vlastitim mjesnim odborom (Štinjan). Smješten je na brežuljcima …i valama iznad sjeverne obale pulskog zaljeva u smjeru Fažane, nasuprot brijunskog otočja. Udaljen od centra grada Pule 7km dok je od centra Fažane udaljen svega 3km. Samo naselje nudi jednu od najljepših i najpopularnijih dugih plaža u Istri, takozvana plaža \"Hidrobaza\" koja se svake godine dodatno uređuje te se sadržaj na njoj postepeno nadograđuje. Predmetni projekt smješten je na svega 1000m od spomenute plaže (Hidrobaza) što je odlično za večernje šetnje uz prekrasno uređenu plažu ili odlazak na kupanje u čistom moru. U neposrednoj blizini nalazi se trgovina koja radi tijekom cijele godine, pekare, razni ugostiteljski objekti a na svega nekoliko km udaljenosti nalaze se veći trgovački centri, benzinske postaje te svi ostali bitni sadržaji. Projekt Projekt je osmišljen i projektiran od vodećeg arhitektonskog studija na ovim prostorima s dugogodišnjem iskustvom pri izradi projekata najviše razine. Svaki stan je pažljivo smišljen kako bi najviše odgovarao njegovoj namjeni, od ugodnih jednosobnih stanova idealnih za parove pa sve do većih i komfornih stanova namijenjenim obiteljima, također svaki s naglaskom na mogućnost pretvorbe istih u prekrasne apartmane. Gradnja i realizacija pripala je građevinskoj tvrtki koja iza sebe ima mnoštvo realiziranih projekata više stambenih zgrada. Dugogodišnjim urednim i vrhunsko izvedenim radom te velikom količinom iskustva, također sama tvrtka slovima kao jedna od vodećih u svojem sektoru na ovim prostorima. Spajanjem vrhunsko smišljenim projektom poput ovoga, sa znanjem, iskustvom te realizacijom koje tvrtka nudi, ne može ispasti ništa drugo nego najbolje rješenje za buduće kupce! Sam projekt sastoji se od ukupno 19 (devetnaest) stambenih zgrada od kojih je 10 (deset) poluugrađeno a 9 (devet) ugrađeno. Svakoj stambenoj zgradi osiguran je dovoljan broj parkirnih mjesta (sve u skladu s urbanističkim planom) sa spojem na elektroenergetsku mrežu s ciljem spajanja punjača za električna vozila. Pojedinim stanovima, osim parkirnog mjesta, pripada i ostava te vrt (stanovi u prizemlju). Bitna napomena za sve buduće kupce je ta da se parkirna mjesta, ostave i/ili vrtovi ne mogu odvajati od stanova, već se prodaju zajedno, odnosno kako je po projektu predodređeno! Ono što dodatno čini ovaj projekt \"posebnim\" jest arhitektonsko rješenje fasada te zeleni krovovi koji se pojavljuju na istim! Tehnički opis stanova Konstrukcija - Temeljna armiranobetonska ploča debljine 40 cm - Nosivi armiranobetonski zidovi debljine 20 cm - Nosivi opečni zidovi debljine 25 cm - Armiranobetonska međukatna ploča debljine 18 cm - Pregradni opečni zidovi debljine 10 cm Betonske konstrukcije izvode se betonom klase C25/30 i čelikom B500B, a opečni zidovi izvode se Porotherm 25 Profi i Porotherm 10 Profi. Fasada - Fasada prizemlja projektirana je kao kamena fasada izvedena travertin bianco kamenim pločama dimenzija 60x30x2cm, iza kojih se nalazi EPS-F debljine 8 cm - Fasada prvog kata projektirana je po sistemu JUBIZOL EPS Standard s 12 cm EPS-F - Fasada ulaznog prostora u građevinu projektirana je kao ventilirana fasada izvedena s Knauf Aquapanel pločama - Staklena ograda istočnog pročelja od zatomljenog kaljenog lamistal stakla 8+8 mm i čeličnih pocinčanih stupića Krov Projektiran je topli ravni neprohodni krov kojega čine sljedeći slojevi: - Armiranobetonska ploča debljine 18cm s aditivom za vodonepropusnost, - Lagani beton u padu, - Parna brana FRAGMAT BITALBIT AL V4 (koja je ujedno i prvi sloj hidroizolacije), - Toplinska izolacija od ekstrudiranog polistirena (XPS) debljine 15cm, - Sintetička krovna hidroizolacijska membrana MAPEPLAN B 15, - Balastni sloj (kamenčići). Vanjska stolarija - PVC stolarije u antracit boji s unutarnje i vanjske strane, - Dvoslojno IZO staklo, - Vanjska aluminijska klupčica, unutarnja kamena, - Svi prozori i balkonska vrata opremljeni su s roletama na elektro pogon i komarnicima. Zajednički dijelovi zgrade - Ulazna vrata u zgradu izrađena od PVC antracit materijala kao i sva ostala stolarija te su opremljena audio i video portafonom, - Ulazni prostor, hodnik i stubište obloženi su kamenom debljine 3cm, - Ograda stubišta izvedena čeličnim profilima i drvenim rukohvatom. Okoliš - Asfaltirani pješački dijelovi na terenu, - Projektirano zasebno mjesto za smještaj smeća, - Parkirališta i kolni prolazi asfaltirani i označeni, - Zelene površine hortikulturno uređene. Svijetla visina stanova (od gotove podne obloge pa do stropa) iznosi 260cm ± 2cm. Podovi Slojevi poda prizemlja projektirani su u ukupnoj debljini 15 cm, a čine ga slijedeći slojevi: - Podložni beton klase betona C16/20 debljine 10 cm, - Sintetička vodonepropusna hidroizolacijska membrana MAPEPLAN UG, - Toplinska izolacija od ekstrudiranog polistirena (XPS) debljine 5 cm, - Armiranobetonska temeljna ploča debljine 40 cm, - Toplinska i zvučna izolacija od elastificiranih ploča EPS-a debljine 8 cm, - Cementni estrih debljine 4-5 cm, - Keramičke pločice I klase talijanskih proizvođača debljine 1,5 cm. Slojevi poda prvog kata projektirani su u ukupnoj debljini 12 cm, a čine ga slijedeći slojevi: - Armiranobetonska međukatna ploča debljine 18 cm, - Toplinska i zvučna izolacija od elastificiranih ploča EPS-a debljine 5 cm, - Cementni estrih debljine 4-5 cm, - Keramičke pločice I klase talijanskih proizvođača debljine 1,5 cm. Podovi svih sanitarnih prostorija i terasa premazani su cementnim fleksibilnim mortom ojačanim vlaknima za hidroizolaciju Sikalastic-152. Zidovi i stropovi - Površine zidova i stropova zaglađene su vapneno-cementnom žbukom BAUMIT MPI 25, - Površine zidova i stropova fino zaglađene JUB NIVELIN disperzivnim gletom, - Površine zidova i stropova ličene JUPOL Classic (bijela) unutarnjom zidnom bojom, - Keramičke pločice I klase talijanskih proizvođača u sanitarnim čvorovima do visine vrata. Stolarija - Talijanska protuprovalna i protupožarna ulazna vrata u stan (otpornost na požar 30 minuta, skala protuprovalnosti 3, zvučno izolirana), - Talijanska sobna vrata svijetle visine 215 cm izrađena s obostranim magnetnim bravama i skrivenim pantima. Keramiku je moguće, do određene faze u tijeku gradnje, birati te prilagoditi po vlastitom izboru. Kupaonice Opcija 1 - Dark - Grey - Zidovi wc-a u tušu izvedeni keramičkim pločicama imitacije mramora dimenzija 120 x 30 cm, pod wc-a izveden antracit keramičkim pločicama dimenzija 60 x 60 cm. Opcija 2 - Beige - Wood - Zidovi wc-a u tušu izvedeni keramičkim pločicama imitacije drva dimenzija 120 x 20 cm, pod wc-a izveden bež keramičkim pločicama dimenzija 60 x 60 cm. Opcija 3 - Beige - Grey - Zidovi wc-a u tušu izvedeni svijetlo sivim keramičkim pločicama dimenzija 60 x 60 cm, pod wc-a izveden bež keramičkim pločicama dimenzija 60 x 60 cm. Sobe Opcija 1 - Dark Wood - Pod dnevnog boravka i soba izveden je keramičkim pločicama imitacije drva dimenzija 120 x 20 cm. Opcija 2 - Grey Wood - Podovi dnevnog boravka i soba izvedeni svijetlo sivim keramičkim pločicama imitacije drva dimenzija 120 x 20 cm. Opcija 3 - Dark - Podovi dnevnog boravka i soba izvedeni antracit keramičkim pločicama dimenzija 60 x 60 cm. Opcija 4 - Grey - Podovi dnevnog boravka i soba izvedeni svijetlo sivim keramičkim pločicama dimenzija 60 x 60 cm. Sve opcije, pod svojim rednim brojem vidljive su po slikama na oglasa! Iz svega gore navedenog, vidi se maksimalna ozbiljnost u gradnji, investitor otvoreno daje na znanje budućim kupcima svaki korak u procesu gradnje te svaki detalj i bitna informacija je jasno i vidljivo naznačena. Investitor je pravna osoba u sustavu PDV-a te u ovom slučaju budući kupac ne plaća PDV te porez na promet nekretninama! Određeni kupci i klijenti koji surađuju te su prethodno surađivali s našom agencijom upoznati su unaprijed s projektom. U \"moru\" svakakvih građevinskih projekata i raznih investitora, ovaj se projekt posebno ističe iz svih gore navedenih razloga a prvenstveno te s naglaskom na maksimalnu ozbiljnost i korektnost od strane investitora. Svim budućim kupcima i klijentima, toplo savjetujemo odabir jedan od navedenih stanova, u ovom opisu naznačeni su svi bitni detalji za kupca a za sva dodatna pitanja, više informacija kao i posjet same lokacije stojimo na raspolaganju. Također, s obzirom na \"manjak\" takvih projekata, čvrsto vjerujemo da će se stanovi prodati u jako kratkom vremenu, s toga nemojte čekati i već danas kontaktirajte našeg agenta: CLAUDIO MEZZALIRA AGENT S LICENCOM Mobitel 099/285-7323 claudio.mezzalira@dogma-nekretnine.com ID KOD AGENCIJE: IS1514895 Claudio Mezzalira Agent s licencom Mob: 099/285-7323 Tel: 052 770 811 E-mail: claudio.mezzalira@dogma-nekretnine.com www.dogma-istra.com Gabrijela Lovrinović Asistent u posredovanju Mob: 097/761-7229 Tel: 052 770 811 E-mail: gabrijela.lovrinovic@dogma-nekretnine.com www.dogma-istra.com