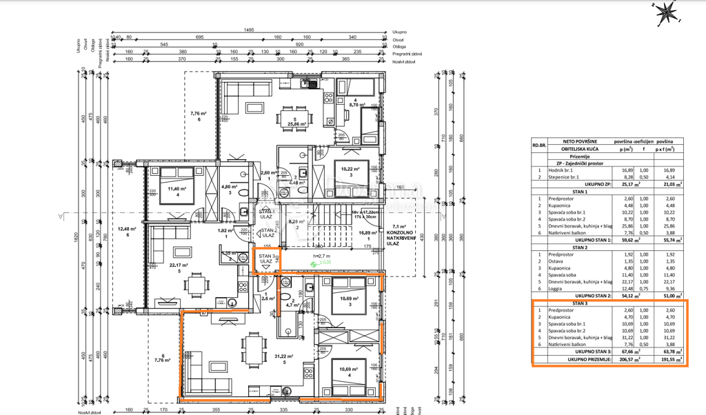
Gradić Žminj je malo idilično mjesto smješteno u unutrašnjosti Istre, koje je poznato po svojoj bogatoj povijesti, prirodnom okruženju i mirnom ambijentu. Nova stambena zgrada sastoji se od ukupno 8 stanova. Zgrada je smještena na pješačkoj udaljenosti od svih bitnih sadržaja u Žminju, što je izuzetno povoljno za svakodnevni život. …To znači da će stanovnici lako moći pristupiti trgovinama, restoranimu, kafićima, ljekarni i drugim uslugama bez potrebe za vožnjom. U prizemlju se smjestio stan površine 63.78 m2, sastoji se od dvije spavaće sobe, open space kuhinje sa blagovaonom i dnevnim boravkom, kupaone te izlaza na balkon. Parkirno mjesto i dio vrta za stanove u prizemlju potrebno je dodatno nadoplatiti. Navedena cijena odnosi se na prodaju stana po principu „Ključ u ruke“. Nova stambena zgrada u Žminju je prilika za one koji traže kvalitetan život u mirnom i autentičnom okruženju Istre, s svim potrebnim sadržajima na dohvat ruke. Osim toga, ograničen broj stanova doprinosi osjećaju privatnosti. Za sve dodatne informacije i razgled nekretnine, slobodno nas kontaktirajte kako bi Vam ponudili personalizirani pristup i diskretnu uslugu pronalaska nekretnina po Vašim željama i preferencijama. LORENA KOGEJ Agent s licencom Mob 091/738-7200 Telefon 052/639-276 lorena.kogej@dogma-nekretnine.com SANDRA MILETIĆ Agent s licencom Mob 091/988-5843 Telefon 052/639-276 sandra.miletic@dogma-nekretnine.com ID KOD AGENCIJE: IS1509993 Lorena Kogej Agent s licencom Mob: 091/738-7200 Tel: 052/639-276 E-mail: lorena.kogej@dogma-nekretnine.com www.dogma-nekretnine.com Sandra Miletić Agent s licencom Mob: 091/988-5843 Tel: 052/639-276 E-mail: sandra.miletic@dogma-nekretnine.com www.dogma-nekretnine.com