Staro mjesto za nalaženje
Unaprijeđenje internetske stranice sufinancirala je Europska unija iz Kohezijskog fonda. Detalji projekta
Staro mjesto za nalaženje
Unaprijeđenje internetske stranice sufinancirala je Europska unija iz Kohezijskog fonda. Detalji projekta
Aktivan od: 15.4.2025.
Oglas pregledan: 231 puta
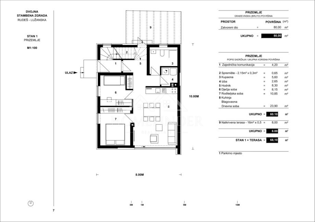
NOVOGRADNJA Rudeš - trosoban (72m2)
295.000 €
Moguća dostava
Osnovni podaci
Vrsta stana
stan u zgradi
Broj soba
3-sobni
Površina
73 m²
Tip gradnje
novogradnja
Detalji o nekretnini
Broj etaža
Da
Godina izgradnje
2024
Kat
1. kat
Energetski certifikat
A+
Broj parkirališnih mjesta
Da
Građevinska dozvola
2131
Vlasnički list
2134
Uporabna dozvola
2132
Dodatno
Dodatno
telefon
Šifra oglasa: 6338578
Aktivan od: 15.4.2025.
Oglas pregledan: 231 puta
Moguća dostava