Staro mjesto za nalaženje
Unaprijeđenje internetske stranice sufinancirala je Europska unija iz Kohezijskog fonda. Detalji projekta
Staro mjesto za nalaženje
Unaprijeđenje internetske stranice sufinancirala je Europska unija iz Kohezijskog fonda. Detalji projekta
Aktivan od: 28.3.2025.
Oglas pregledan: 398 puta
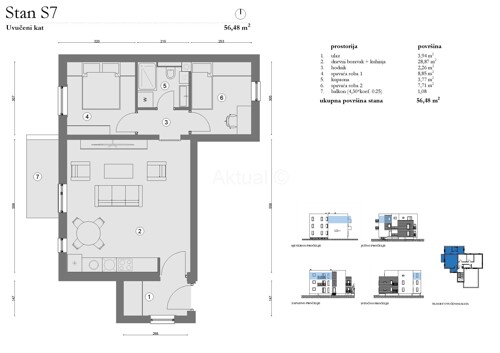
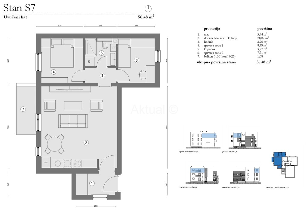
NOVOGRADNJA! PENTHOUSE, 3S, 56.48 m2, ZAGREB, RUDEŠ
242.864 €
Moguća dostava
Osnovni podaci
Broj soba
3-sobni
Površina
56 m²
Grijanje
plin etažno
Tip gradnje
novogradnja
Stambena površina
56 m²
Detalji o nekretnini
Broj kupaonica
Da
Godina izgradnje
2026
Energetski certifikat
A
Šifra oglasa: 6328437
Aktivan od: 28.3.2025.
Oglas pregledan: 398 puta
Moguća dostava