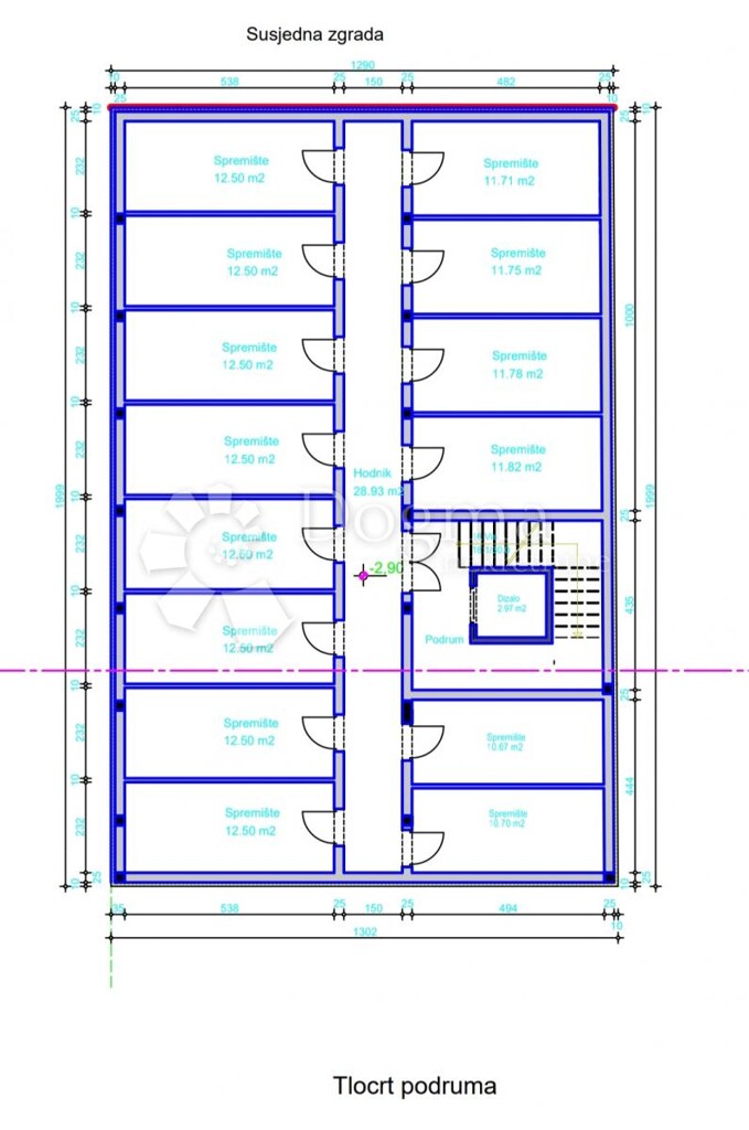
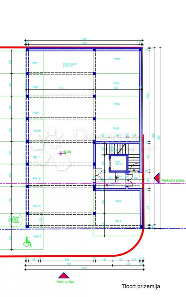
Na prodaju je novogradnja smještena u centru Pule. Ova zgrada s odličnom lokacijom ima ukupno 15 stambenih jedinica. Veličine stanova se kreću između 28 i 55 m2. Konkretno, stan C2 se nalazi na drugom katu i ima površinu od 54,15 m2. Sastoji se od kuhinje, blagavaonice, dnevnog boravka, ostave, hodnika, …kupaonice, dvije spavaće sobe i lođe. U prizemlju zgrade se nalazi ostava veličine 12,5 m2 koja je obavezna uz nadoplatu od 22.000 eura. Na raspolaganju su vam dvije mogućnosti parkinga za prodaju: Prva opcija je vanjsko parkirno mjesto veličine 12,5 m2, dostupno po cijeni od 14.000 eura. Druga opcija je natkriveno parkirno mjesto veličine 15 m2, koje se može nabaviti po cijeni od 22.000 eura. Planirani završetak gradnje je u rujnu 2024. godine. Ova novogradnja predstavlja izvrsnu priliku za udoban i moderno dizajniran dom u samom centru Pule. Za dodatne informacije ili organiziranje pregleda, slobodno se obratite. ADRIJANO BILAN Asistent u posredovanju Mob 099 626 9626 adrijano.bilan@dogma-nekretnine.com FILIP CRNJAC Licencirani agent Mob 091/600/1216 filip.crnjac@dogma-nekretnine.com ID KOD AGENCIJE: IS1509111 Filip Crnjac Agent s licencom Mob: 091/600-1216 Tel: 052 645 444 E-mail: filip.crnjac@dogma-nekretnine.com www.dogma-istra.com Adrijano Bilan Asistent u posredovanju Mob: 099/626-9626 Tel: 052 645 444 E-mail: adrijano.bilan@dogma-nekretnine.com www.dogma-istra.com