Staro mjesto za nalaženje
Unaprijeđenje internetske stranice sufinancirala je Europska unija iz Kohezijskog fonda. Detalji projekta
Staro mjesto za nalaženje
Unaprijeđenje internetske stranice sufinancirala je Europska unija iz Kohezijskog fonda. Detalji projekta
Aktivan od: 6.5.2025.
Oglas pregledan: 96 puta
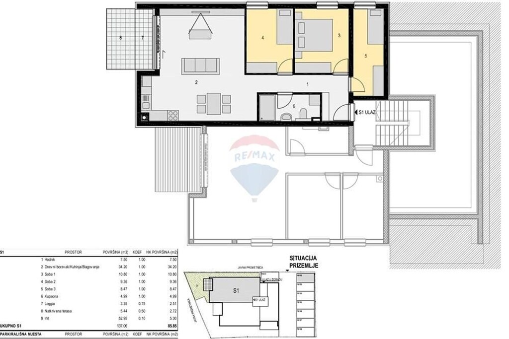
MANDRE PRVI RED DO MORA
600.950 €
Hrvatska, Zadarska, Pag, Kolan
Otvori u kartama
Moguća dostava
Osnovni podaci
Vrsta stana
stan u zgradi
Broj soba
4-sobni
Površina
86 m²
Tip gradnje
novogradnja
Detalji o nekretnini
Broj etaža
Da
Kat
suteren
Broj parkirališnih mjesta
Da
Vlasnički list
2134
Šifra oglasa: 6360887
Aktivan od: 6.5.2025.
Oglas pregledan: 96 puta
Hrvatska, Zadarska, Pag, Kolan
Otvori u kartama
Moguća dostava