Staro mjesto za nalaženje
Unaprijeđenje internetske stranice sufinancirala je Europska unija iz Kohezijskog fonda. Detalji projekta
Staro mjesto za nalaženje
Unaprijeđenje internetske stranice sufinancirala je Europska unija iz Kohezijskog fonda. Detalji projekta
Aktivan od: 25.3.2025.
Oglas pregledan: 384 puta
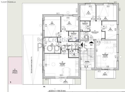
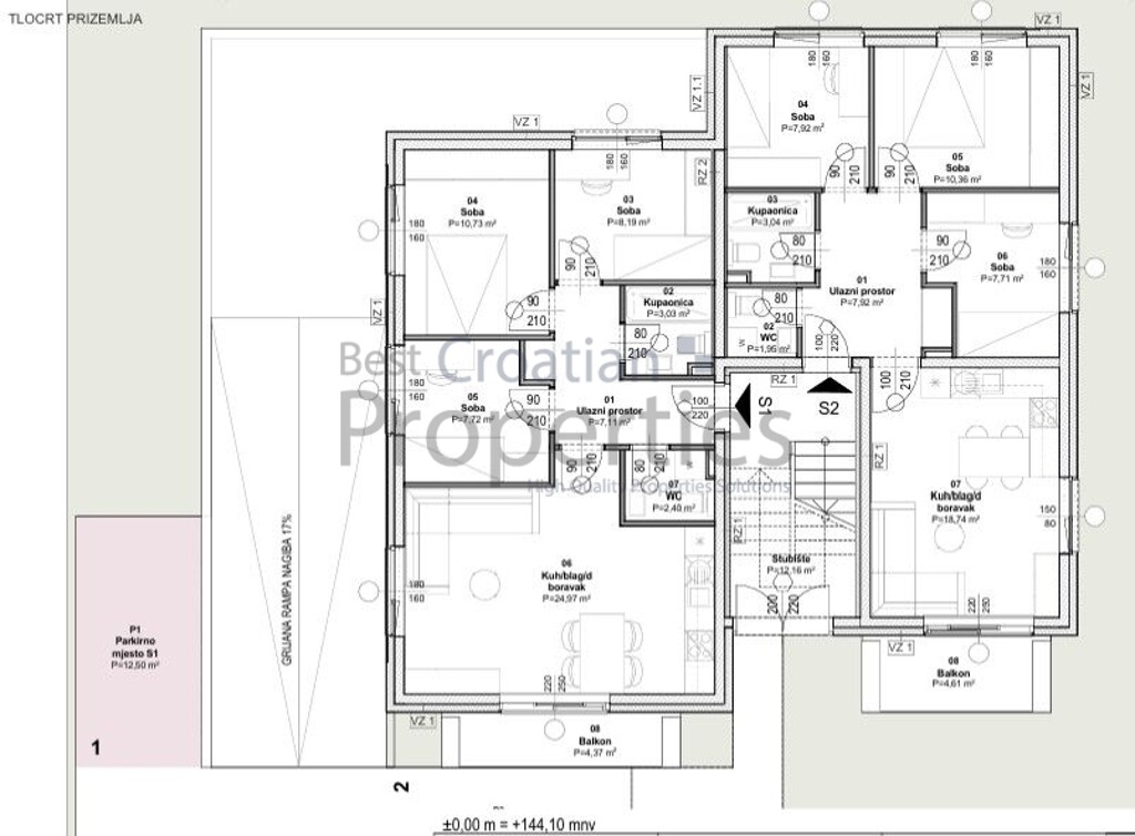
GORNJA DUBRAVA - NOVOSELEC, NOVOGRADNJA, 4.-SOB. PRIZEMLJE, 80,54 m2
257.728 €
Moguća dostava
Osnovni podaci
Broj soba
4-sobni
Površina
81 m²
Tip gradnje
novogradnja
Stambena površina
81 m²
Detalji o nekretnini
Broj kupaonica
Da
Broj sanitarnih čvorova
2
Godina izgradnje
2026
Energetski certifikat
A+
A
Stanje nekretnine
u izgradnji
Garaža
parkirno mjesto
Građevinska dozvola
2131
Vlasnički list
2134
Dodatno
Dodatno
fiksni telefon
ostalo
ostalo
Blizina
Šifra oglasa: 6326578
Aktivan od: 25.3.2025.
Oglas pregledan: 384 puta
Moguća dostava