Staro mjesto za nalaženje
Unaprijeđenje internetske stranice sufinancirala je Europska unija iz Kohezijskog fonda. Detalji projekta
Staro mjesto za nalaženje
Unaprijeđenje internetske stranice sufinancirala je Europska unija iz Kohezijskog fonda. Detalji projekta
Aktivan od: 1.6.2023.
Oglas pregledan: 772 puta
Poreč, okolica, visoko kvalitetna vila s pogledom prema moru
1.250.000 €
Hrvatska
Otvori u kartama
Moguća dostava
Osnovni podaci
Vrsta kuće
samostojeća kuća
Broj etaža
višekatnica
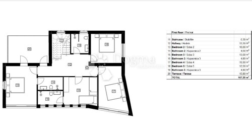
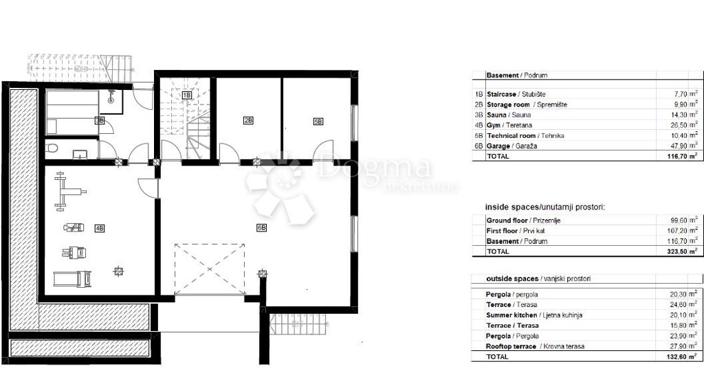
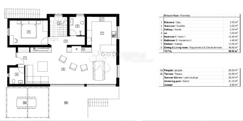
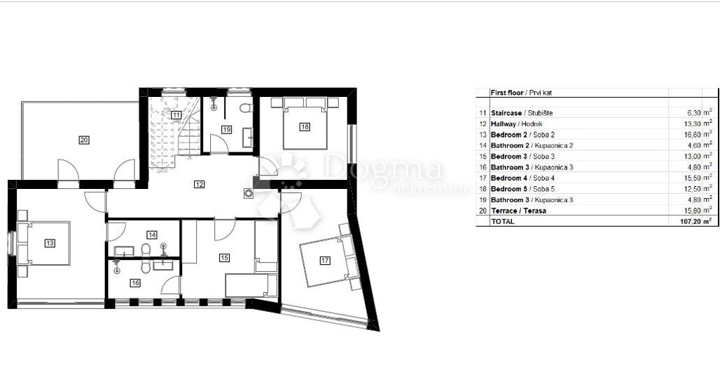
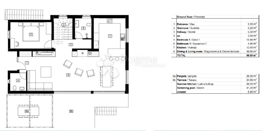
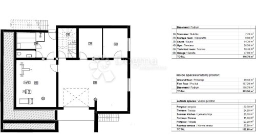
Stambena površina
324 m²
Broj soba
6
Tip gradnje
novogradnja
Godina izgradnje
2024
Više o nekretnini
Površina okućnice
958 m²
Dozvole
građevinska dozvola
vlasnički list
Okućnica
bazen
Šifra oglasa: 5289155