Aktivan od: 5.12.2025.
Oglas pregledan: 36 puta
Kuća za potpunu adaptaciju
268.000 €
Lokacija oglasa
Hrvatska, Grad Zagreb, Maksimir, Laščina
Otvori u kartama
Moguća dostava
Opis proizvoda
Na Kozjaku se prodaje stambeni dvojni objekt sa četiri etaže za potpunu adaptaciju.
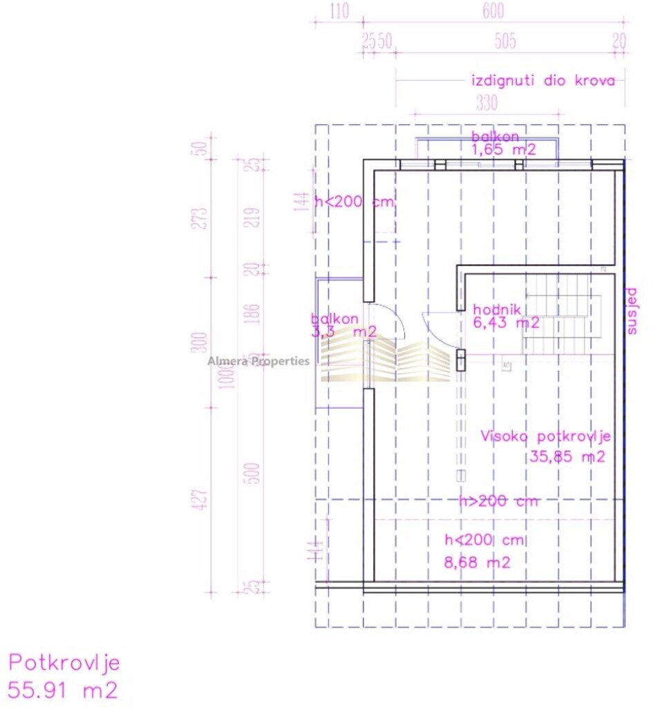
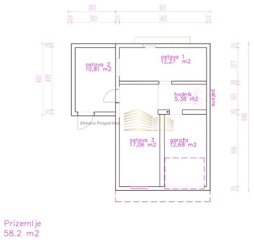
Prizemlje je površine 58,2 m², 1. etaža 72,61 m², 2. etaža 66,94 m² te visoko potkrovlje 55,91 m². Ukupna korisna neto površina na sve 4 etaže iznosi 253,66 m². Kad se uzmu u obzir koeficijenti za balkone,
Osnovni podaci
Stambena površina
227 m²
Površina okućnice
299 m²
Broj soba
5
Godina izgradnje
1976
Više o nekretnini
Broj parkirališnih mjesta
4
Šifra oglasa: 4782849
Aktivan od: 5.12.2025.
Oglas pregledan: 36 puta
Lokacija oglasa
Hrvatska, Grad Zagreb, Maksimir, Laščina
Otvori u kartama
Moguća dostava
Staro mjesto za nalaženje
Unaprijeđenje internetske stranice sufinancirala je Europska unija iz Kohezijskog fonda. Detalji projekta













