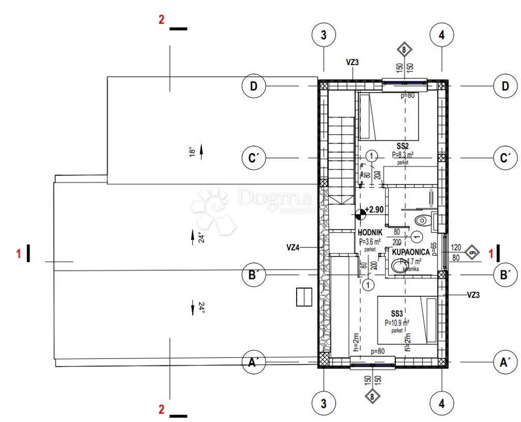
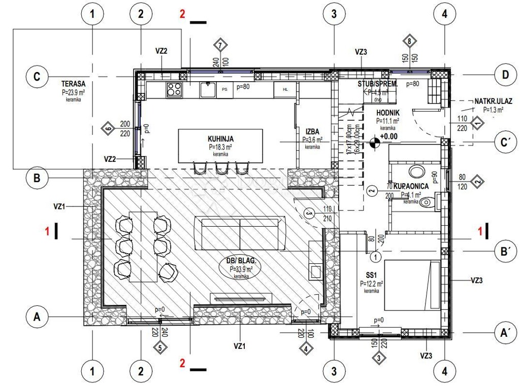
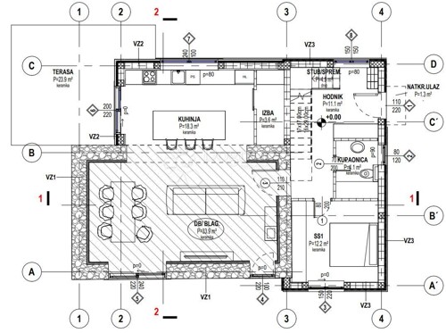
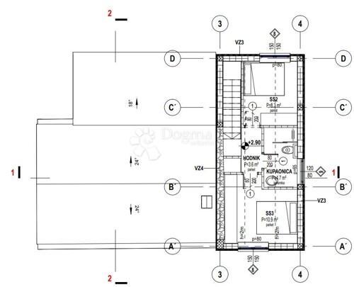
Prodaje se kuća u izgradnji na mirnoj lokaciji u općini Svetvinčenat + građevinsko zemljište sa građevinskom dozvolom, projektom i priključcima Lokacija: Kraj sela, slijepa ulica. Površina parcele: 614 m² Neto površina kuće: 111 m² Opis nekretnine: Kuća se nalazi na kraju sela u mirnoj slijepoj ulici i ima pristup s …javnog puta. Parcela je površine 614 m², omeđena sa tri strane suhozidima, pružajući privatnost i sigurnost, uz ovu nekretninu dolazi i građevinsko zemljište na susjednoj parceli sa pravomoćnom građevinskom dozvolom, projektom i priključcima. Samim time ova nekretnina predstavlja izuzetnu investiciju. Kuća je trenutno u fazi izgradnje, a predviđena je izgradnja samostojeće stambene građevine koja uključuje prizemlje i kat, te pomoćne građevine - bazen s bazenskom tehnikom, sabirnu jamu i 2 parkirna mjesta. Prizemlje: Dnevni boravak i blagovaonica s visinom stropa od 5m Kuhinja kao open space prostor Ostava Kupaonica Hodnik Spavaća soba Kat: Unutarnje stubište 2 spavaće sobe Kupaonica Vanjska popločena terasa površine 23 m² i bazen površine 28 m² dodatno doprinose udobnosti i uživanju u ovoj nekretnini. Okruženje: U neposrednoj blizini zemljišta nalaze se kuće mještana i kuće za odmor, čime je ova buduća kuća idealna za one koji žele uživati u svim blagodatima koje nudi mirno istarsko selo ili za investitore koji žele ostvariti odličan prihod od iznajmljivanja kuće za odmor. Infrastruktura: Na parceli se nalaze priključci za struju i vodu. Dokumentacija: Za kuću je izdana pravomoćna građevinska dozvola i plaćeni su svi komunalni doprinosi. Navedena cijena je za roh-bau kuću sa prostranim građevinskim zemljištem na susjednoj parceli koje posjeduje građevinsku dozvolu, projekat i priključke. Za dodatne informacije i dogovor za razgledavanje, molimo kontaktirajte: STEFANO PERUŠKO ASISTENT U POSREDOVANJU Mobitel 099/721-0395 stefano.perusko@dogma-nekretnine.com ID KOD AGENCIJE: IS1514302 Stefano Peruško Agent s licencom Mob: 099/721-0395 Tel: 052 770 811 E-mail: stefano.perusko@dogma-nekretnine.com www.dogma-istra.com